1639 abbot kinney:
Historic CRAFTSMAN Bungalow
venice, ca

  • APN#: 4241036035
    Parcel Area: 3,570 Sq. Ft.
    Parcel Dims.: Depth 105'-0", Width 34"-0"
    Date Built: 1911 (1641 Abbot Kinney Blvd.)
    1935 (1939 Abbot Kinney Blvd.)
    Total Building Area: 5,125 Sq. Ft.
    Zoning: M1-1-O, Zone Change To (T)(Q) CM-1-O
    General Plan Use: Limited Manufacturing
    Building Use: (E) Comm. Retail and Multi-Fam Res.
    Const. Type: Type V-A
    Bldg. Code: Commercial and Residential Combo
    Fire Sprinkler: Yes, Fully Sprinklered
    Coastal Zone: Yes, Single Jurisdiction
    Historic Pres Review: No
    Landslide: No
    Methane Zone: None
    Liquefaction: Yes
    Climate Zone: 6
    Parking: 3 Comm. and 1 Biz = 4 Total

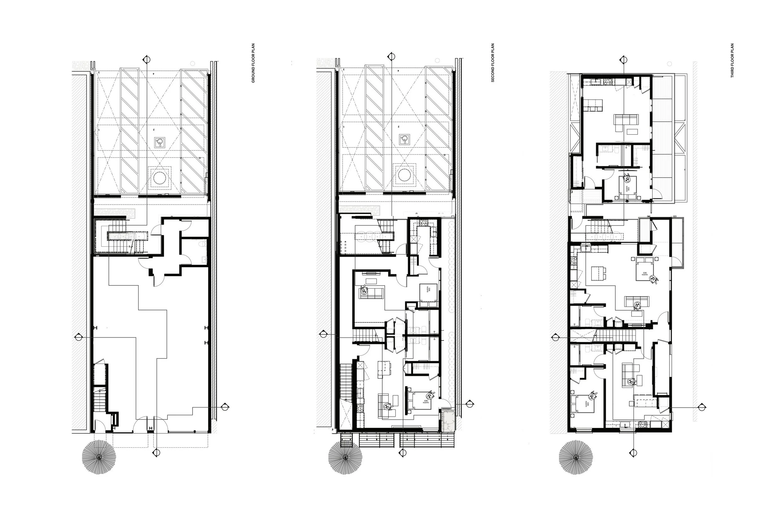
The project’s most ambitious and meaningful gesture was the preservation and adaptive reuse of the original 1918 Craftsman bungalow—a structure now elevated 15 feet above grade to accommodate parking below, while maintaining its architectural authenticity. Framed anew to support the restored board-and-batten cladding and distinctive Japanese-influenced multi-gable roof, the bungalow has been transformed into a one-bedroom residence that balances modern living with historic reverence. Inside, the ceiling was opened to reveal the original roof structure, showcasing the craftsmanship and character that make this building a rare and important architectural asset along Abbot Kinney.